Loading...
Methermo Original Deuren

MUD

Methermo Original inbraakwerend naar buiten draaiende deur, type MUD.

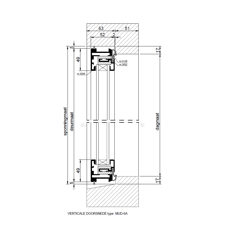
Methermo Original deuren zijn er in verschillende uitvoeringen, onderstaande weergave is van type MUD-6A.

  • HR++ isolatieglas, glasdikte maximaal 28 mm
  • geïsoleerd aluminium deurprofiel
  • rvs scharnieren nr. 1039
  • rvs meerpuntssluiting
  • rvs doorlopende slotkap nr. 3026
  • rvs smalschild nr. 3049
  • rvs deurkruk nr. 8468 aan binnen- en buitenzijde
  • euro (nood-)profielcilinder 35/35
  • afdichtingsrubber nr. 3113
  • borstelprofielen

Bekijk alle varianten en technische details in de documentatie.

MUD-6A
Buitenzijde kruk, binnen kruk - meerpuntsslot
MUD-6B
Buitenzijde knop, binnen kruk - meerpuntsslot
MUD-6C
Buitenzijde knop, binnen kruk - elektrisch meerpuntsslot
MUD-6D
Buitenzijde knop, binnen kruk - meerpuntsslot met paniekfunctie
MUD-6E
Buitenzijde kruk, binnen kruk - standaard slot
MUD-6F
Buitenzijde knop, binnen kruk - standaard slot
MUD-6G
Buitenzijde Metinox greep, binnen kruk - meerpuntsslot
MUD-6H
Buitenzijde Metinox greep, binnen kruk - elektrisch meerpuntsslot

Metaglas denkt graag met u mee. Heeft u vragen over de vele mogelijkheden van de Methermo Original naar buiten draaiende deuren of wilt u advies over de mogelijkheden voor uw project? Neem dan contact met ons op. Wij helpen u graag verder.

Laat een bericht achter
Kom in contact!