Loading...
Methermo Original Naar buiten draaiende ramen

MDU

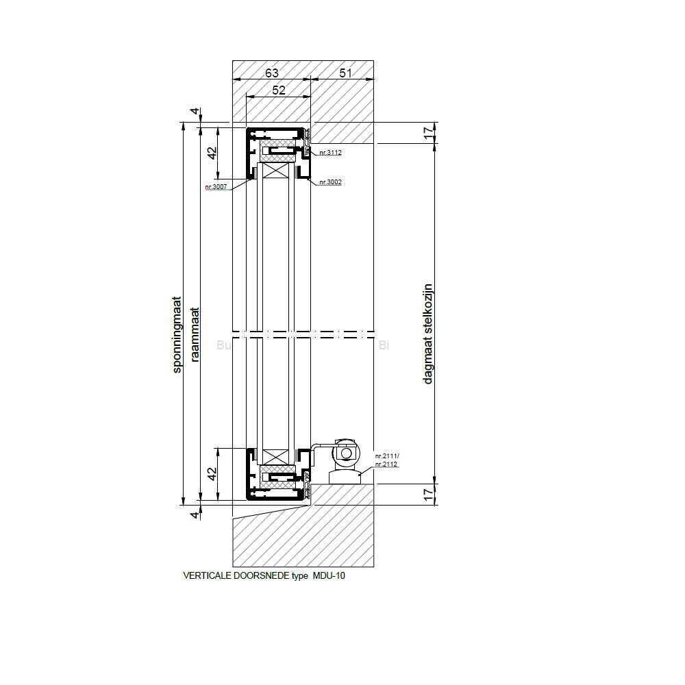
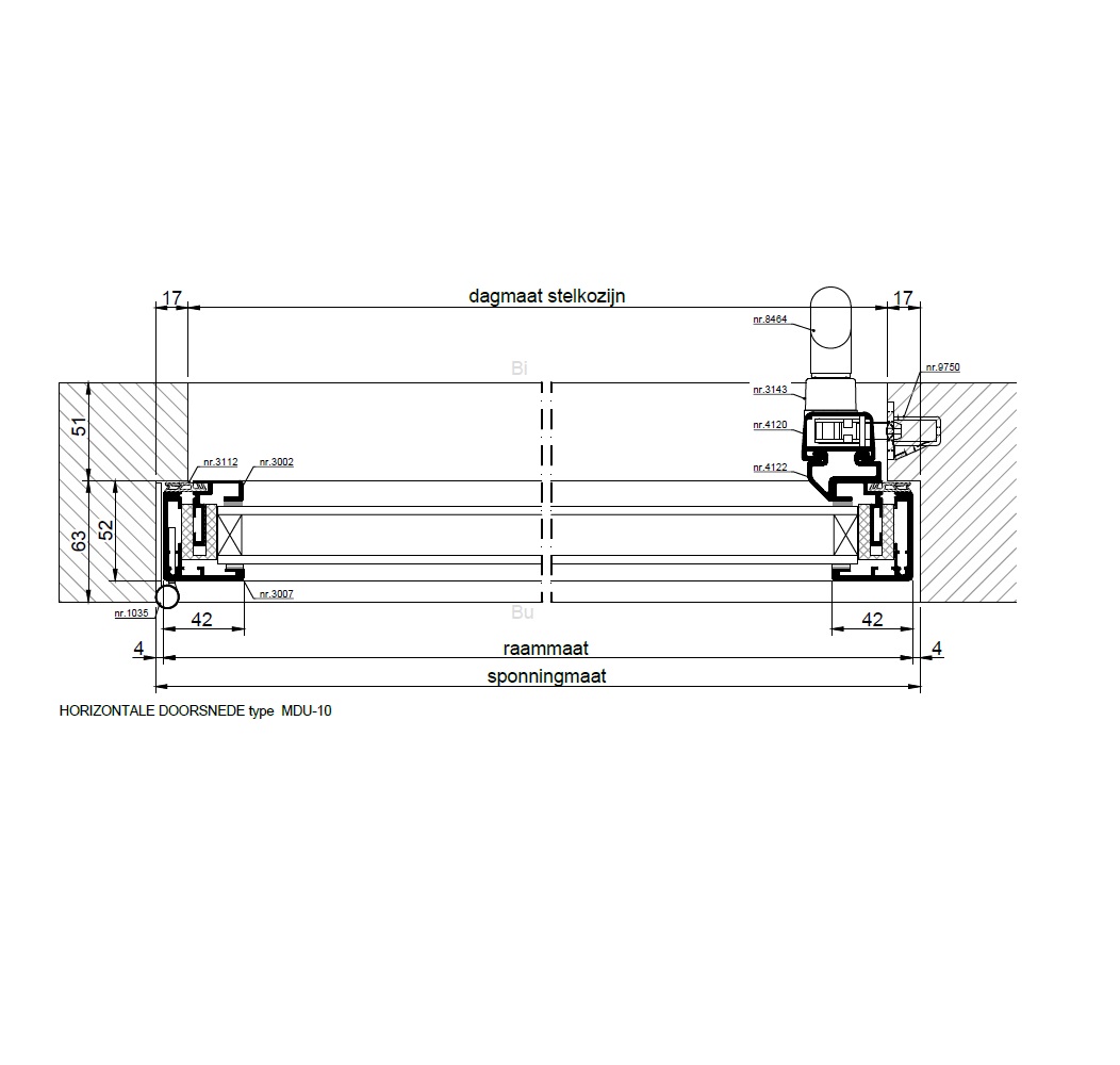
Methermo Original inbraakwerend naar buiten draaiend raam, type MDU.

Methermo Original draairamen zijn er in verschillende uitvoeringen, onderstaande weergave is van type MDU-10.

  • HR++ isolatieglas, glasdikte maximaal 33 mm
  • geïsoleerd aluminium raamprofiel
  • rvs scharnieren nr. 1035
  • espagnoletprofiel nr. 4120 en nr. 4122 met meerpuntssluiting
  • sluitkom nr. 9750
  • rvs handgreep nr. 8464
  • rvs slotmechaniek nr. 3143
  • telescoopuitzetter nr. 2111 of nr. 2112
  • afdichtingsrubber nr. 3112

Bekijk alle varianten en technische details in de documentatie.

MDU-9
Draairaam, glasdikte tot 34 mm
MDU-10
Draairaam, glasdikte tot 34 mm met espagnolet
MDU-21
Draairaam, glasdikte tot 27 mm (classic serie)
MDU-22
Draairaam, glasdikte tot 34 mm met espagnolet (classic serie)

Metaglas denkt graag met u mee. Heeft u vragen over de vele mogelijkheden van de Methermo Original naar buiten draaiende ramen of wilt u advies over de mogelijkheden voor uw project? Neem dan contact met ons op. Wij helpen u graag verder.

Laat een bericht achter
Kom in contact!