Loading...
Methermo Original Naar binnen draaiende ramen

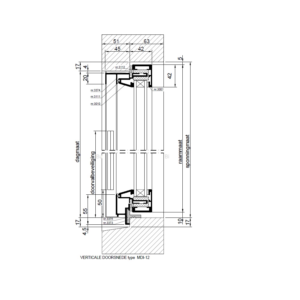
MDI met doorvalbeveiliging

Methermo Original inbraakwerend naar binnen draaiend raam, type MDI met doorvalbeveiliging.

Methermo Original draairamen zijn er in verschillende uitvoeringen, onderstaande weergave is van type MDI-12.

  •  enkel gelaagd HR++ isolatieglas, glasdikte maximaal 27 mm
  • geïsoleerd aluminium raamprofiel
  • rvs scharnieren nr. 1037
  • raamgreepcombinatie
    nr. 3143, nr. 3144 en nr. 8464
  • sluitplaten nr. 3148
  • ontwateringsframe met opname voor geïntegreerde doorvalbeveiliging van
    profiel nr. 3374, nr. 3373 en nr. 3375
  • doorvalbeveiligingspaneel van gelaagd glas
  • afdichtingsrubbers nr. 3111 en nr. 3112.

Bekijk alle varianten en technische details in de documentatie.

MDI-12
Draairaam, glasdikte tot 28 mm met doorvalbeveiliging
MDI-13
Draairaam, glasdikte tot 28 mm met espagnolet en doorvalbeveiliging
MDI-43
Draairaam, glasdikte tot 39 mm met doorvalbeveiliging (brandwerend)
MDI-51
Draairaam, glasdikte tot 39 mm met doorvalbeveiliging
MDI-52
Draairaam, glasdikte tot 39 mm met espagnolet en doorvalbeveiliging
MDI-54
Draairaam, glasdikte tot 45 mm met doorvalbeveiliging
MDI-55
Draairaam, glasdikte tot 45 mm met espagnolet en doorvalbeveiliging

Metaglas denkt graag met u mee. Heeft u vragen over de vele mogelijkheden van de Methermo Original naar binnen draaiende ramen met doorvalbeveiliging of wilt u advies over de mogelijkheden voor uw project? Neem dan contact met ons op. Wij helpen u graag verder.

Laat een bericht achter
Kom in contact!