Loading...
Methermo XL Naar buiten draaiende ramen & deuren

XKR

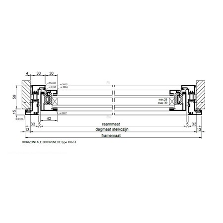
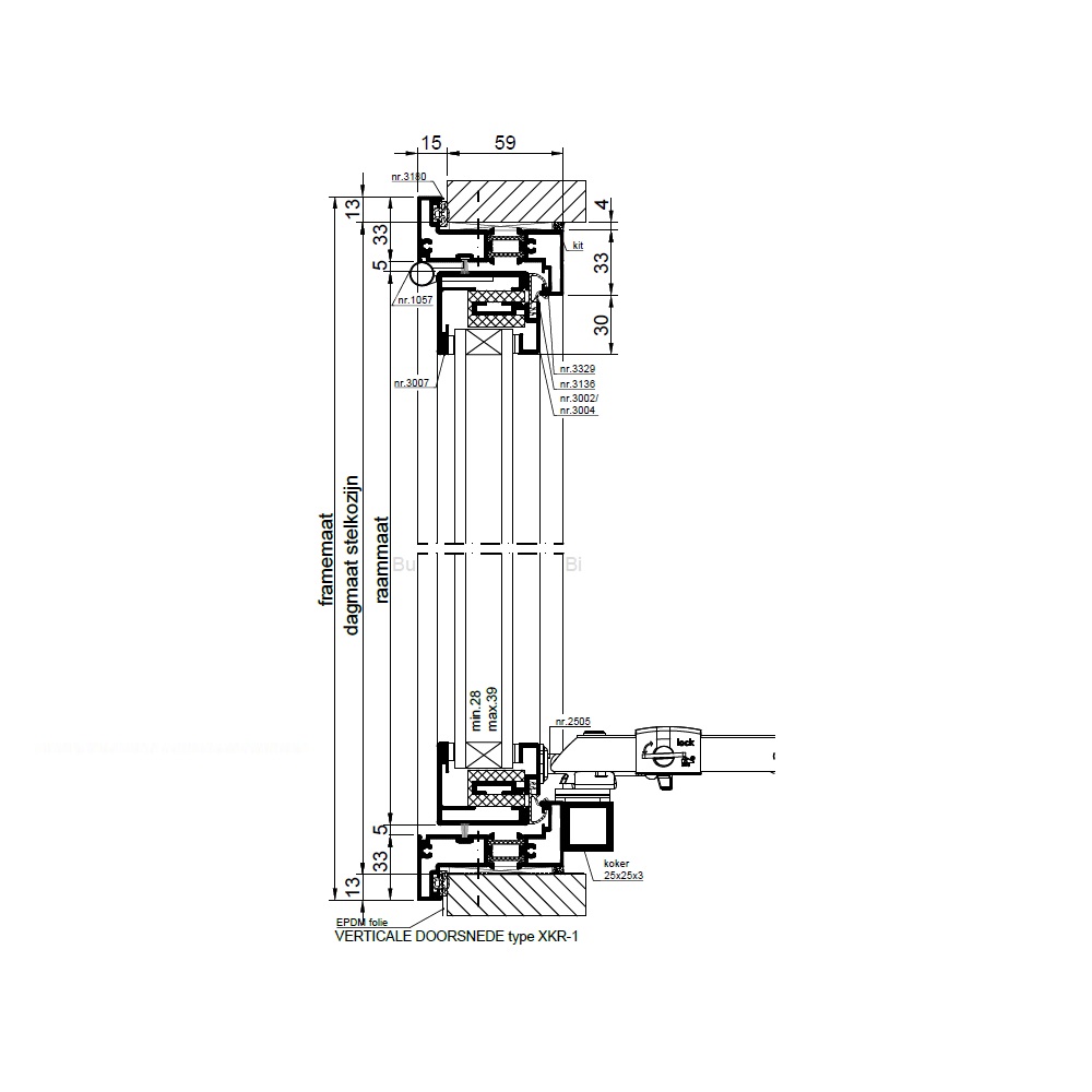
Methermo XL inbraakwerend naar buiten kleppend raam, type XKR met een geïsoleerd aluminium kozijn.

Methermo XL klepramen zijn er in verschillende uitvoeringen, onderstaande weergave is van type XKR-1.

  • HR++ isolatieglas, glasdikte maximaal 34 mm
  • geïsoleerd aluminium raamprofiel
  • geïsoleerd kozijn van aluminium profiel
  • rvs scharnieren
  • rvs afsluitbare raamuitzetter
  • bevestigingskoker
  • aanslagrubber
  • afdichtingsrubber
  • elektrische bediening, AXA remote (optioneel)

Bekijk alle varianten en technische details in de documentatie.

XKR-1
Klepraam

Methermo XL naar buiten draaiende ramen en deuren zijn modulair te combineren zodat vrijwel iedere gewenste gevelindeling kan worden gerealiseerd. Bij de toepassing van meerdere glaspanelen verandert het typenummer van de XKR naar XKR-2, zie samenstellingsoverzicht in de technische documentatie.

Metaglas denkt graag met u mee. Heeft u vragen over de vele mogelijkheden van de Methermo XL naar buiten draaiende klepramen of wilt u advies over de mogelijkheden voor uw project? Neem dan contact met ons op. Wij helpen u graag verder.

Laat een bericht achter
Kom in contact!