Loading...
Methermo XL Naar buiten draaiende ramen & deuren

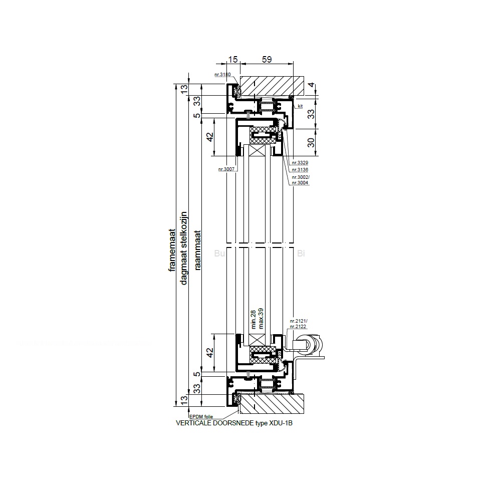
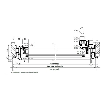
XDU

Methermo XL inbraakwerend naar buiten draaiend raam, type XDU met een geïsoleerd aluminium kozijn.

Methermo XL draairamen zijn er in verschillende uitvoeringen, onderstaande weergave is van type XDU-1B.

  • HR++ isolatieglas, glasdikte maximaal 34 mm
  • geïsoleerd aluminium raamprofiel
  • geïsoleerd kozijn van aluminium profiel
  • rvs scharnieren
  • espagnoletprofiel met meerpuntssluiting
  • rvs handgreep
  • rvs slotmechaniek
  • telescoopuitzetter
  • aanslagrubber
  • afdichtingsrubber

Bekijk alle varianten en technische details in de documentatie.

XDU-1A
Draairaam
XDU-1B
Draairaam met espagnolet

Methermo XL naar buiten draaiende ramen en deuren zijn modulair te combineren zodat vrijwel iedere gewenste gevelindeling kan worden gerealiseerd. Bij de toepassing van meerdere glaspanelen verandert het typenummer van de XDU-1 naar XDU-2, zie samenstellingsoverzicht in de technische documentatie.

Metaglas denkt graag met u mee. Heeft u vragen over de vele mogelijkheden van de Methermo XL naar buiten draaiende ramen of wilt u advies over de mogelijkheden voor uw project? Neem dan contact met ons op. Wij helpen u graag verder.

Laat een bericht achter
Kom in contact!