Loading...
Methermo Original Stolpramen / stolpdeuren

MSU

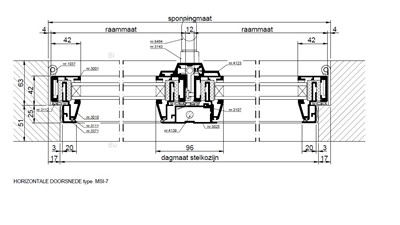
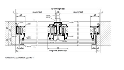
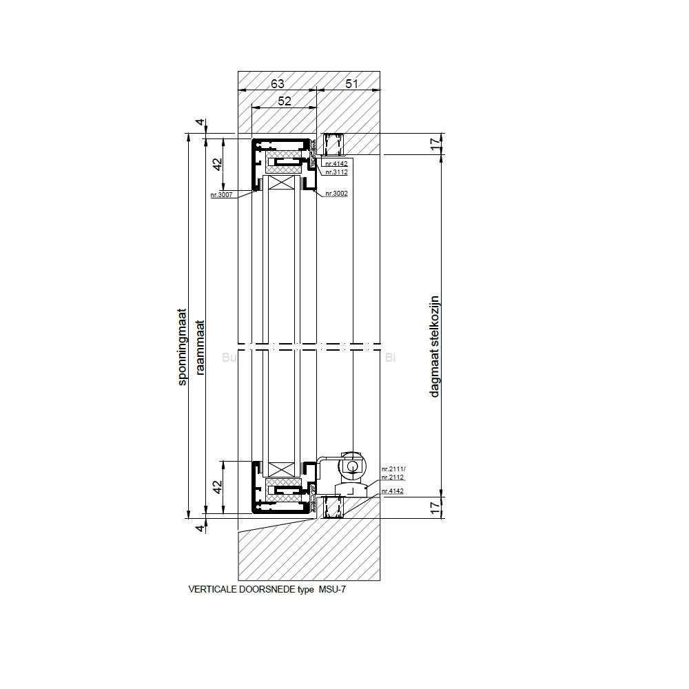
Methermo Original naar buiten draaiend stolpraam, type MSU.

Methermo Original stolpramen zijn er in verschillende uitvoeringen, onderstaande weergave is van type MSU-7.

  • HR++ isolatieglas, maximale glasdikte 33 mm
  • geïsoleerd aluminium raamprofiel - rvs scharnieren nr. 1035
  • afdekprofiel nr. 4119
  • espagnoletprofiel nr. 3009 met meerpuntssluiting en tegenkast
  • sluitkom nr. 4142
  • rvs handgreep nr. 8464
  • rvs slotmechaniek nr. 3143
  • rubber afdichtingsprofiel nr. 3118
  • telescoopuitzetters nr. 2111 of nr. 2112
  • afdichtingsrubber nr. 3112

Bekijk alle varianten en technische details in de documentatie.

MSU-7
Stolpraam, glasdikte tot 34 mm
MSU-10
Stolpraam, glasdikte tot 27 mm (classic serie)

Metaglas denkt graag met u mee. Heeft u vragen over de vele mogelijkheden van de Methermo Original naar buiten draaiende stolpramen of wilt u advies over de mogelijkheden voor uw project? Neem dan contact met ons op. Wij helpen u graag verder.

Laat een bericht achter
Kom in contact!