Loading...
Methermo Original Naar buiten draaiende ramen

MK

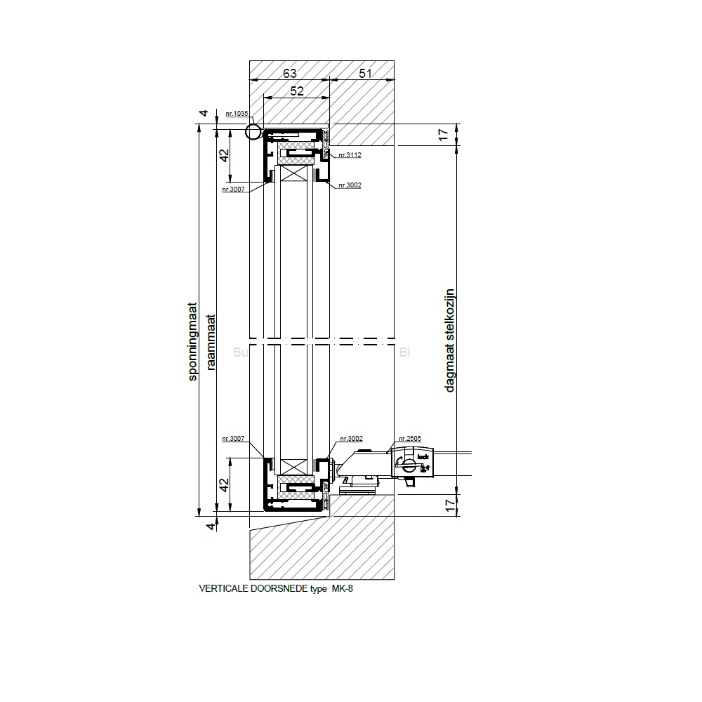
Methermo Original inbraakwerend naar buiten kleppend raam, type MK.

Methermo Original klepramen zijn er in verschillende uitvoeringen, onderstaande weergave is van type MK-8.

  • HR++ isolatieglas, glasdikte maximaal 33 mm
  • geïsoleerd aluminium raamprofiel
  • rvs scharnieren nr. 1035
  • rvs afsluitbare raamuitzetter nr. 2505
  • afdichtingsrubber nr. 3112

Bekijk alle varianten en technische details in de documentatie.

MK-8
Klepraam, glasdikte tot 34 mm
MK-16
Klepraam, glasdikte tot 27 mm (classic serie)

Metaglas denkt graag met u mee. Heeft u vragen over de vele mogelijkheden van de Methermo Original naar buiten draaiende klepramen of wilt u advies over de mogelijkheden voor uw project? Neem dan contact met ons op. Wij helpen u graag verder.

Laat een bericht achter
Kom in contact!