Methermo Original Naar binnen draaiende ramen
MDI
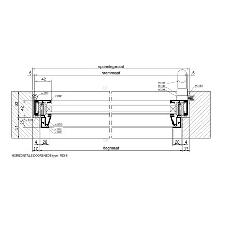
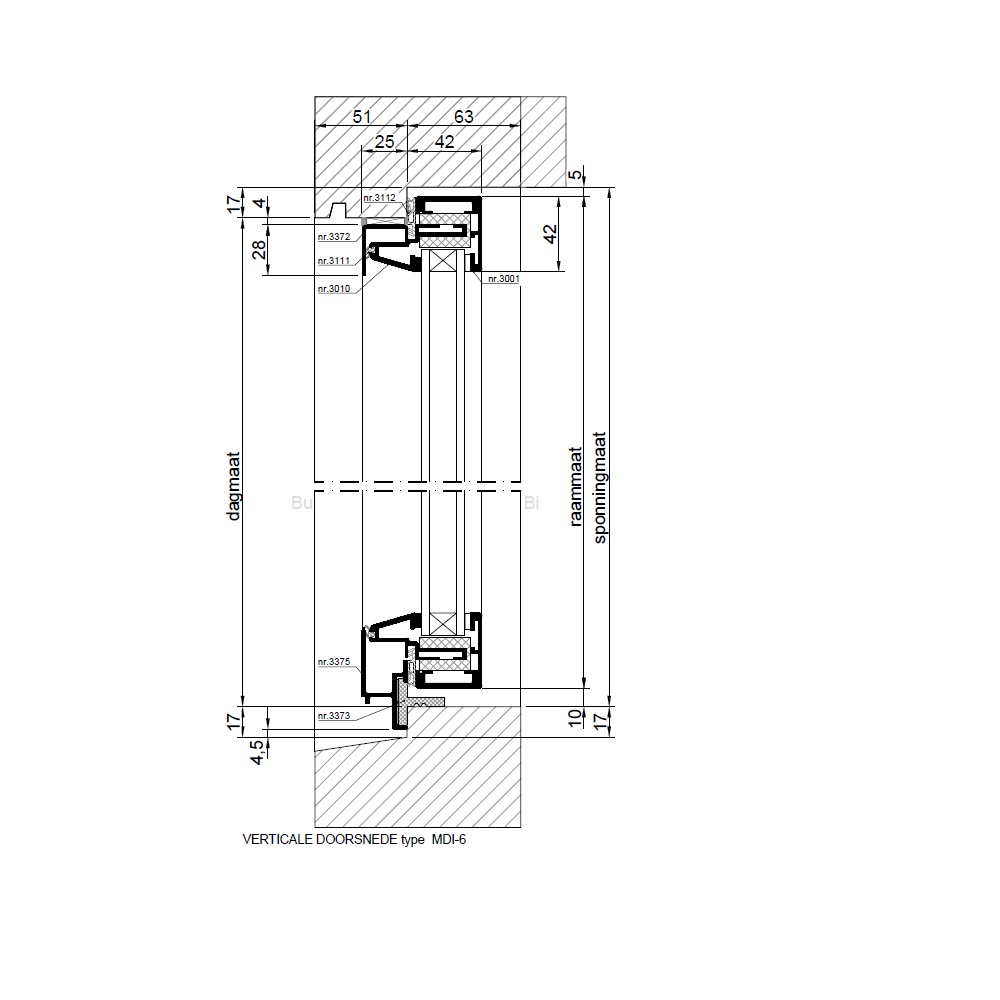
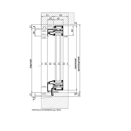
Methermo Original inbraakwerend naar binnen draaiend raam, type MDI.
Methermo Original draairamen zijn er in verschillende uitvoeringen, onderstaande weergave is van type MDI-6.
- HR++ isolatieglas, glasdikte maximaal 27 mm
- geïsoleerd aluminium raamprofiel
- rvs scharnieren nr. 1037
- raamgreepcombinatie
 nr. 3143, nr. 3144 en nr. 8464
- sluitplaten nr. 3148
- ontwateringsframe van profiel
 nr. 3371, nr. 3372, nr. 3373 en nr. 3375
- afdichtingsrubbers nr. 3111 en nr. 3112
Bekijk alle varianten en technische details in de documentatie.
MDI-6
                            Draairaam, glasdikte tot 28 mm
                            
                        MDI-7
                            Draairaam, glasdikte tot 28 mm met espagnolet
                            
                        MDI-42
                            Draairaam, glasdikte tot 39 mm (brandwerend)
                            
                        MDI-45
                            Draairaam, glasdikte tot 39 mm
                            
                        MDI-46
                            Draairaam, glasdikte tot 39 mm met espagnolet
                            
                        MDI-48
                            Draairaam, glasdikte tot 45 mm
                            
                        MDI-49
                            Draairaam, glasdikte tot 45 mm met espagnolet
                            
                        Metaglas denkt graag met u mee. Heeft u vragen over de vele mogelijkheden van de Methermo Original naar binnen draaiende ramen of wilt u advies over de mogelijkheden voor uw project? Neem dan contact met ons op. Wij helpen u graag verder.
 
             
             
                                     
                                     
                                     
                                     
                                     
                                     
                                     
                                     
                                     
                                     
                                     
                                     
                                    