Loading...
Methermo Original Draai-kiepramen

MSDK

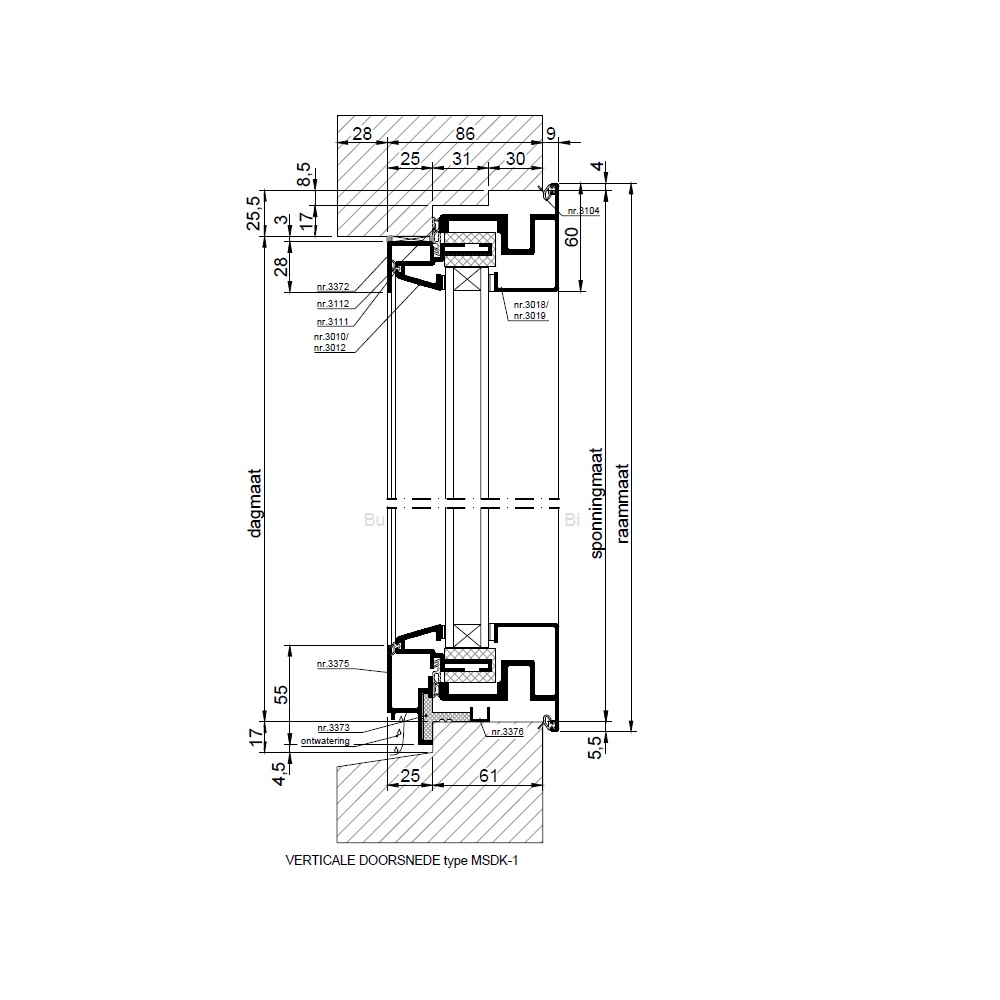
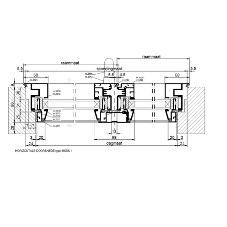
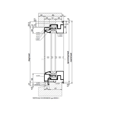
MethermO Original inbraakwerend stolpdraai-kiepraam, type MSDK.

Methermo Original stolp-draaikiepramen zijn er in verschillende uitvoeringen, onderstaande weergave is van type MSDK-1.

  • HR++ isolatieglas, glasdikte maximaal 46 mm
  • geïsoleerd aluminium raamprofiel
  • stolpdraai-kiepbeslag
  • rvs handgreep nr. 8464
  • rvs slotmechaniek nr. 3143
  • U-profiel nr. 3376
  • ontwateringsframe van profiel nr. 3371, nr. 3372,
    nr. 3372 en nr. 3375
  • afdichtingsrubbers nr. 3104, nr. 3111 en nr. 3112

Bekijk alle varianten en technische details in de documentatie.

MSDK-1
Stolp-draaikiepraam, glasdikte tot 48 mm

Metaglas denkt graag met u mee. Heeft u vragen over de vele mogelijkheden van de Methermo Original naar binnen draaiende stolp-draaikiepramen of wilt u advies over de mogelijkheden voor uw project? Neem dan contact met ons op. Wij helpen u graag verder.

Laat een bericht achter
Kom in contact!