Loading...
Methermo Original Deuren

MIS

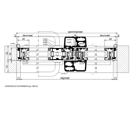
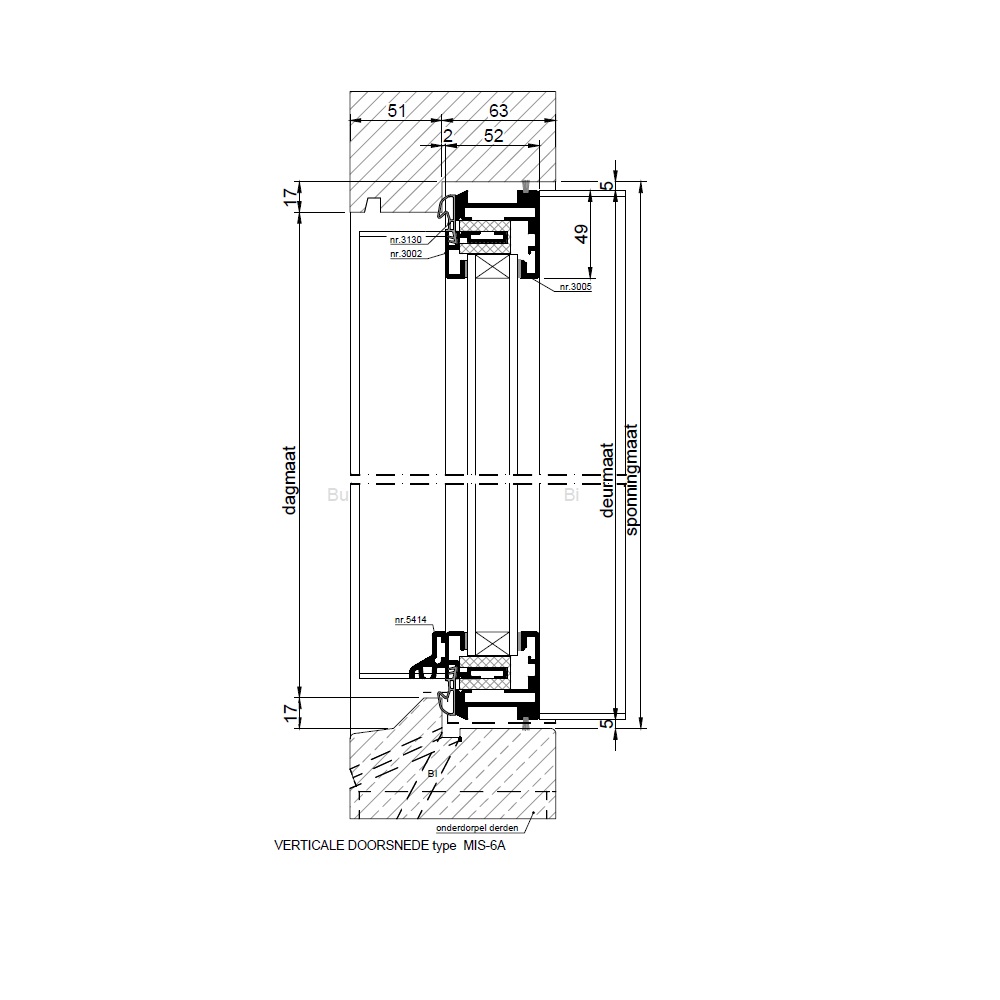
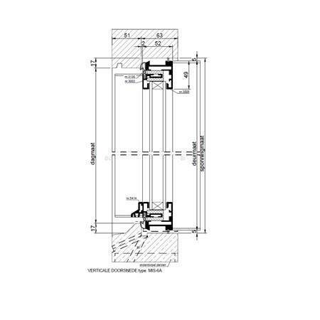
Methermo Original inbraakwerend naar binnen draaiende stolpdeur, type MIS.

Methermo Original stolpdeuren zijn er in verschillende uitvoeringen, onderstaande weergave is van type MIS-6A.

  • HR++ isolatieglas, glasdikte maximaal 28 mm
  • geïsoleerd aluminium deurprofiel
  • aluminium middennaad afdichting nr. 4136
  • rvs scharnieren nr. 1039
  • rvs meerpuntssluiting
  • rvs doorlopende slotkap nr. 3026
  • rvs smalschild nr. 3049
  • rvs deurkruk nr. 8468 aan binnen- en buitenzijde
  • rvs tegenkant met espagnolet nr. 3064
  • lekdorpel nr. 5414
  • euro (nood-)profielcilinder 35/35
  • afdichtingsrubber nr. 3130 en nr. 8183
  • borstelprofielen

Bekijk alle varianten en technische details in de documentatie.

MIS-6A
Buitenzijde kruk, binnen kruk - meerpuntsslot
MIS-6B
Buitenzijde knop, binnen kruk - meerpuntsslot
MIS-6C
Buitenzijde knop, binnen kruk - elektrisch meerpuntsslot
MIS-6D
Buitenzijde knop, binnen kruk - meerpuntsslot met paniekfunctie
MIS-6E
Buitenzijde kruk, binnen kruk - standaard slot
MIS-6F
Buitenzijde knop, binnen kruk - standaard slot
MIS-6G
Buitenzijde Metinox greep, binnen kruk - meerpuntsslot
MIS-6H
Buitenzijde Metinox greep, binnen kruk - elektrisch meerpuntsslot

Metaglas denkt graag met u mee. Heeft u vragen over de vele mogelijkheden van de Methermo Original naar binnen draaiende stolpdeuren of wilt u advies over de mogelijkheden voor uw project? Neem dan contact met ons op. Wij helpen u graag verder.

Laat een bericht achter
Kom in contact!