Loading...

On-Nederlandse allure

aan de rand van de Veluwe


Interview met Silvia Romijn van landgoed Het Esse

Aan de oever van de Albaplas, vlakbij de Veluwe, heeft een spectaculair ontworpen bed and breakfast deze zomer haar deuren geopend. Landgoed Het Esse is een droom die uitkwam voor eigenaren Silvia en Richard Romijn, en die ze bovendien zélf vorm gaven.

De familie Romijn werkte vier jaar aan de realisatie van hun villa. Het complex is sinds eind vorig jaar hun thuis is en per 1 augustus ook geopend is als B&B met vergaderruimte en wellnessfaciliteiten. “We ontdekten de Albaplas tijdens een vakantie. Het is een voormalig zandwinningsmeer dat al twee jaar te koop stond en de mogelijkheid bood een huis te bouwen aan de westkant van de plas. Zo ontstond het plan om hier een inspirerende plek te creëren waar we niet alleen als gezin kunnen wonen en werken, maar ook anderen van willen laten genieten.”

Verbinding met de natuur

Het J-vormige ontwerp van de villa is bedacht door Silvia en Richard zelf. Silvia: “We hebben samen al heel wat verbouwingen achter de rug. Voor ons was dit een unieke kans om nu eens van scratch af een huis te bouwen dat helemaal past bij onze ideeën over wonen en leven. De verbinding met buiten en de natuur speelt daarin een grote rol. Dat zie je bijvoorbeeld aan de organische vorm van het gebouw, het gebruik van natuursteen, de vloeren die van binnen naar buiten doorlopen en zoveel mogelijk glazen gevelelementen.”

Vrij uitzicht

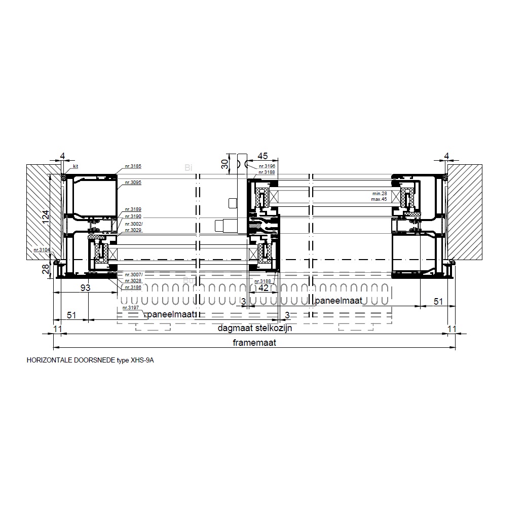
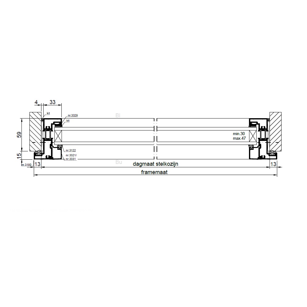
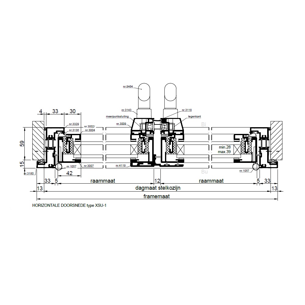
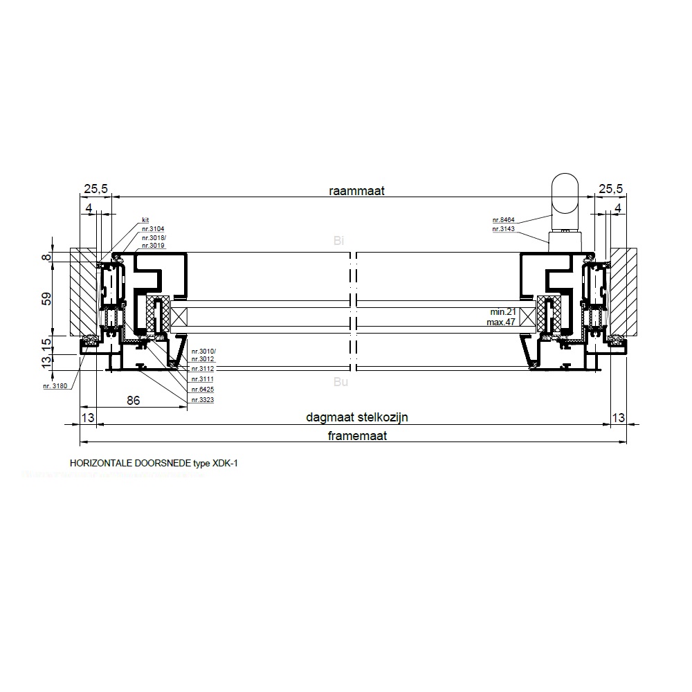
Het meest in het oog springt het ronde woondeel, dat letterlijk boven het water zweeft. Vanaf hier is er rondom vrij uitzicht over de Albaplas dankzij het gebruik van ultraslanke aluminium raam- en deursystemen. Silvia: “De natuur is hier altijd dichtbij. Voor onszelf is het vaak ook nog een beetje onwerkelijk dat we hier nu wonen. We beseffen heel goed dat deze plek haast on-Nederlands is.”

Projectinformatie

Locatie
Lieren
Opdrachtgever
Particulier
Bouwbedrijf
VTM BV
Jaar van realisatie
2019
Fotografie
Daph Dutch Architectural Photographers
Deel dit project
Laat een bericht achter
Kom in contact!